Bent u op zoek naar een ruime woning op een centrale, en vlot bereikbare locatie?
Deze verzorgde bel-etage woning in het gezellige Torhout biedt u alle comfort voor het hele gezin.
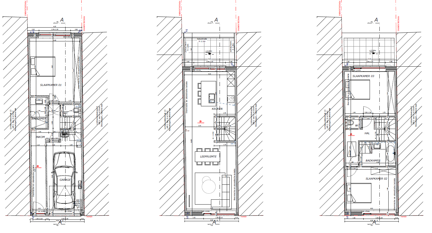
Op het gelijkvloers bevindt zich een ruime inkomhal met gastentoilet en directe toegang tot de inpandige garage – ideaal voor wagen, fietsen en extra opslag.
Via het gelijkvloers kunt u de gezellige stadstuin bereiken.
De eerste verdieping vormt het hart van de woning. Hier geniet u van een lichtrijke leefruimte met grote raampartijen en een aangename zithoek. Aansluitend vindt u de volledig uitgeruste keuken met voldoende kastruimte en plaats voor een eethoek. Vanuit de leefruimte heeft u toegang tot het terras – perfect om te ontspannen of te genieten van lange zomeravonden. Via het terras op de eerste verdieping kunt u ook de tuin op het gelijkvloers bereiken.
Op de tweede verdieping bevinden zich twee volwaardige slaapkamers en een badkamer uitgerust met douche, lavabo en toilet.
De zolderruimte is via een zolderval bereikbaar.
Deze woning combineert ruimte, functionaliteit en een uitstekende ligging in een kindvriendelijke omgeving, nabij winkels, scholen en openbaar vervoer.
Bewoonbare oppervlakte = 125 m² + garage 15.5 m² + zolderruimte 43 m²
Prijzen zijn exclusief btw en kosten.
Laat hier je gegevens na en wij bezorgen jou het lastenboek van dit project.
